产品分类
PRODUCT- 手持气象站
- 手持气象仪
- 袖珍气象站
- 便携式气象站
- 便携式气象仪
- 碳纤维便携式气象站
- 车载气象站
- 自动气象站
- 超声波气象站
- 化工自动气象站
- 森林气象站
- 校园气象站
- 雪深监测站
- 输电线路气象站
- 雷电预警系统
- 机场气象站
- 高精度风蚀自动气象站
- 海洋气象站
- 可升降避雷针
- 夜视仪
- 北斗环境监测站
- 气象传感器
- 水文监测系统
- 农业气象站
- 草原气象站
- 交通气象站
- 光伏气象站
- 景区气象站
推荐文章
联系我们
山东风途电子科技有限公司
服务热线:16652863761
客服QQ:2749609891
客服微信:16652863761
公司地址:山东省潍坊市高新区光电路155号光电产业加速器(一期)

产品详情
一、裂缝监测系统产品简介
裂缝监测系统又称裂缝检测系统,裂缝监测系统用于实时监测裂缝宽度变化,用于基坑裂缝监测和建筑物裂缝观测,可实现裂缝的分布式、实时、连续监测的需求。本产品广泛应用于地质灾害、岩土工程、建筑工程、交通、水利、市政等多个监测领域,特别适用于地表裂缝、卸荷裂隙、房屋或结构裂缝等相对位移的精确监测。
在地质灾害监测中,能够实时捕捉地表裂缝的微小变化,为滑坡、崩塌等灾害预警提供关键数据;在岩土工程中,可有效监测卸荷裂隙的发展趋势,确保工程安全;
在建筑工程领域,能够精准检测房屋或结构裂缝的位移情况,为建筑物的健康诊断和维护提供科学依据;
在交通、水利和市政工程中,同样能够发挥重要作用,确保基础设施的长期稳定运行。
通过高精度的监测数据,帮助用户及时采取应对措施,降低风险,保障工程和人员安全。
二、裂缝监测系统技术参数
| 量程 | 0-1000mm |
| 精度 | ±0.02%F.S |
| 响应时间 | 1s |
| 外壳材质 | ABS |
| 供电电压 | 12-24VDC(0.4W@12V) |
| 通讯方式 | modbus-485 |
| 太阳能板功率 | 8W |
| 太阳能板标准工作电压 | DC5V |
| 内置锂电池容量 | 5000mAh |
| 支架材质 | 不锈钢 |
| 采集器 | 带3年流量 |
| 数据传输 | 标配每10分钟传输一次,支持定制 |
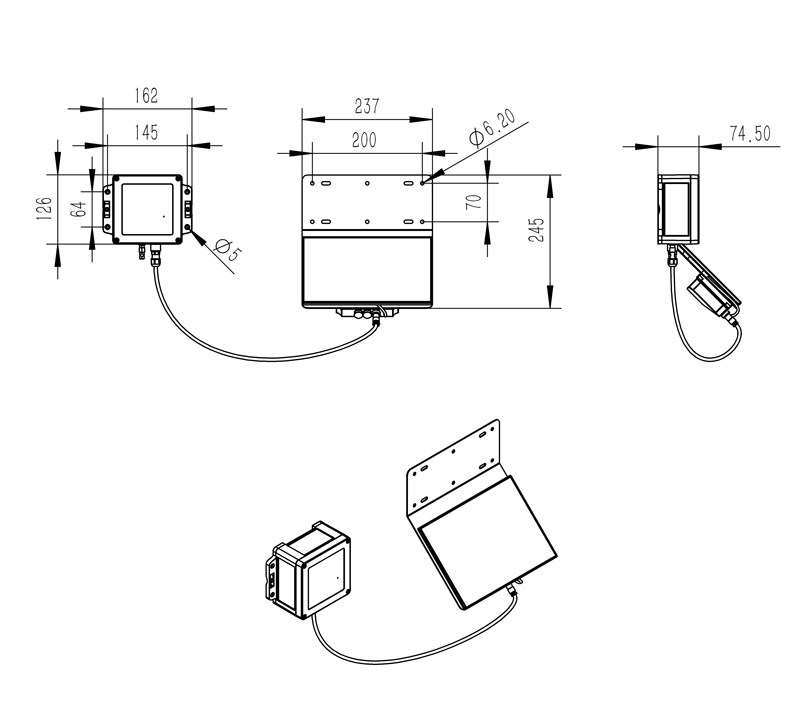
三、裂缝监测系统产品尺寸图

文章地址:http://www.xxqxz.com/shuiwen/1619.html
- 上一篇:裂缝监测传感器
- 下一篇:管网低功耗采集微系统




